تماس با هورامکو

RST116 آساش

کاتالوگ فنی

مشخصات فنی

  • پهنای قاب 116 میلیمتر
  • پهنای بازشو 52 میلیمتر
  • ضخامت دیواره 1.6 - 1.8 - 2 میلیمتر
  • پهنای تیغه پلی آمید 15 میلیمتر
  • ضخامت شیشه 20 - 24 - 28 میلیمتر
  • ارتفاع قابل رویت 146.8 میلیمتر
  • انواع بازشوهای پنجره قابل اجرا
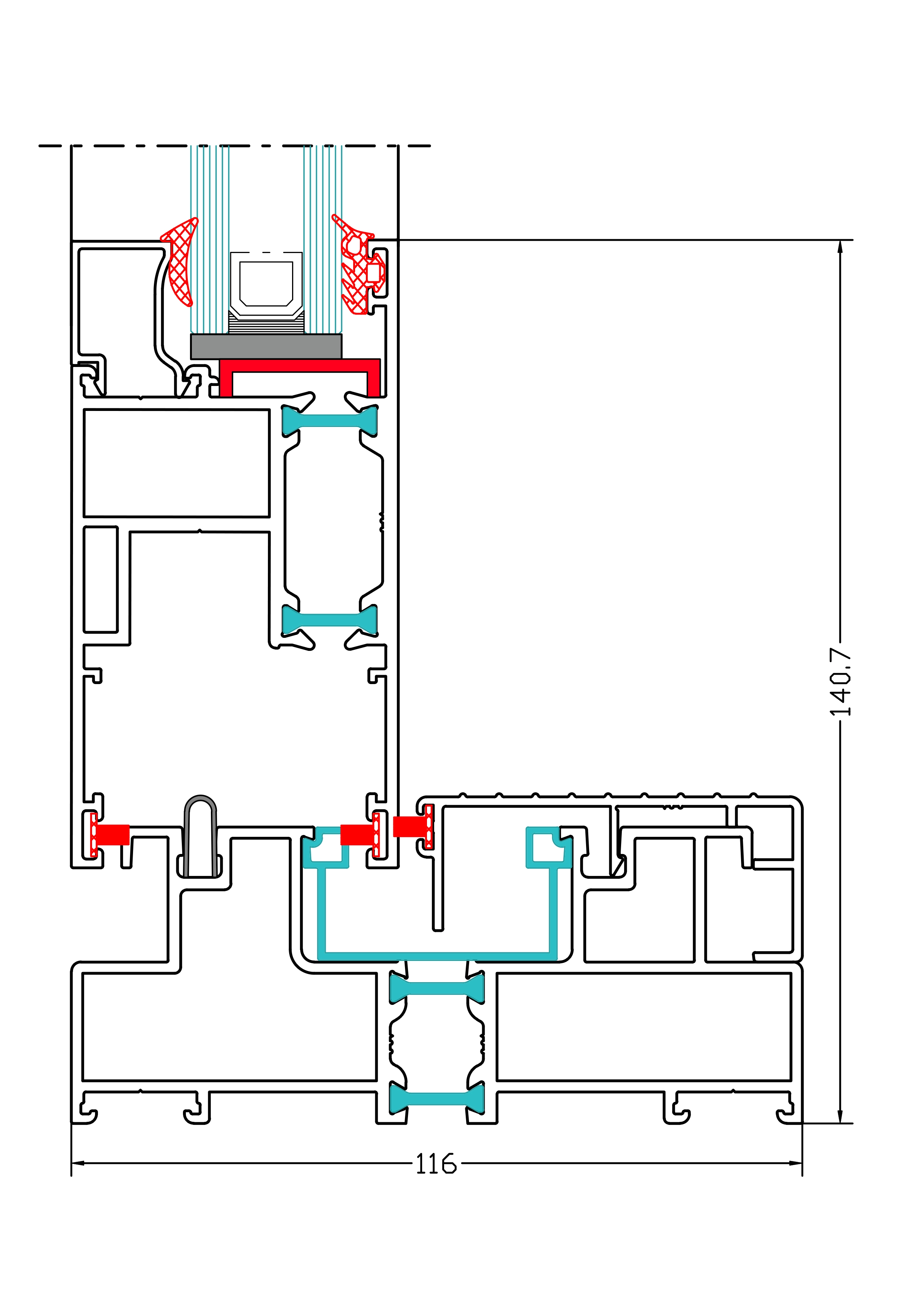
  • پهنای قاب 116 میلیمتر
  • پهنای بازشو 52 میلیمتر
  • ضخامت دیواره 1.6 - 1.8 - 2 میلیمتر
  • پهنای تیغه پلی آمید 15 میلیمتر
  • ضخامت شیشه 20 - 24 - 28 میلیمتر
  • ارتفاع قابل رویت 140.7 میلیمتر
  • انواع بازشوهای پنجره قابل اجرا
  • پهنای قاب 180 میلیمتر
  • پهنای بازشو 52 میلیمتر
  • ضخامت دیواره 1.6 - 1.8 - 2 میلیمتر
  • پهنای تیغه پلی آمید 15 میلیمتر
  • ضخامت شیشه 20 - 24 - 28 میلیمتر
  • ارتفاع قابل رویت 140.7 میلیمتر
  • انواع بازشوهای پنجره قابل اجرا