تماس با هورامکو

REPF160 Power Feel آساش

کاتالوگ فنی

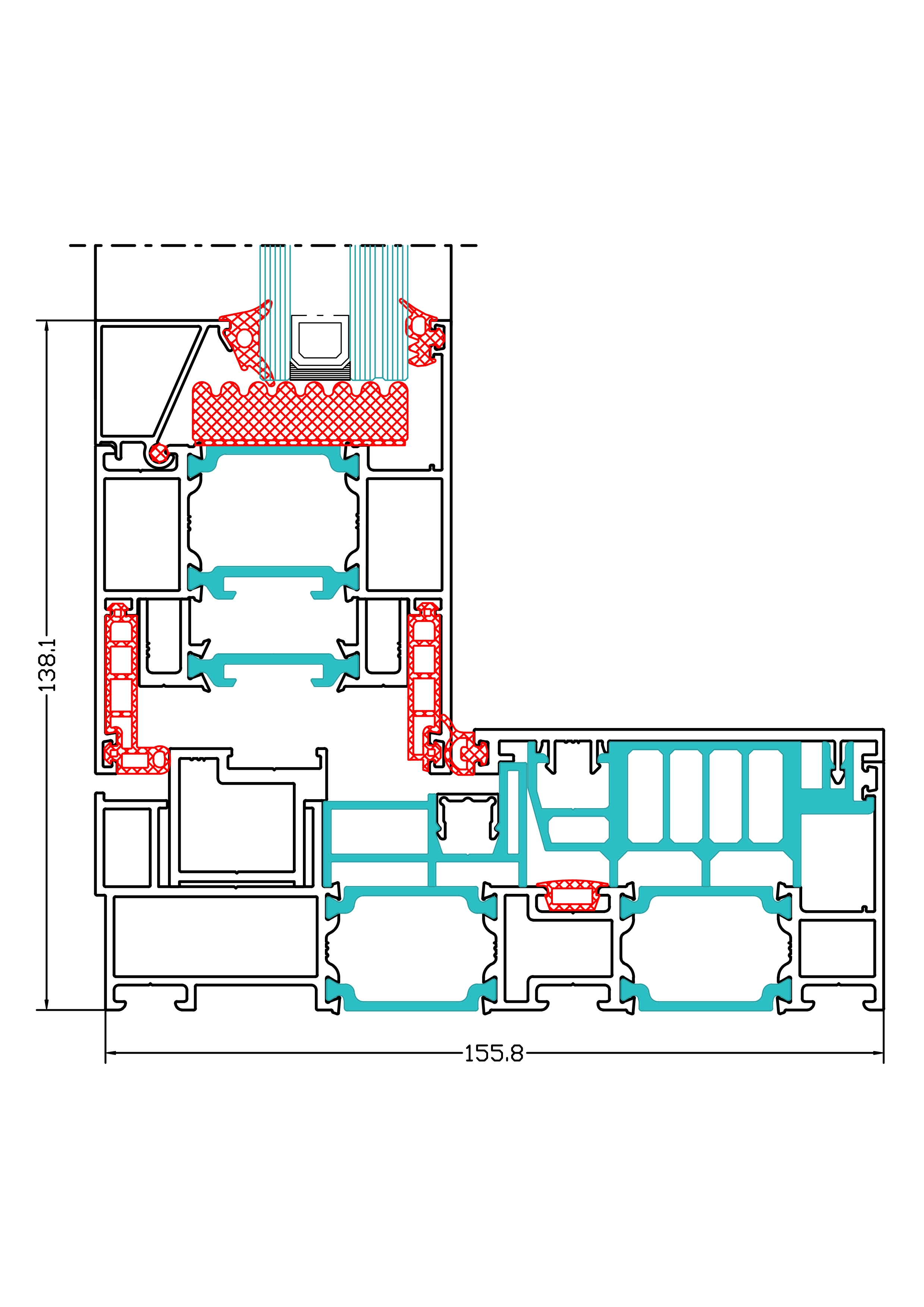
مشخصات فنی

  • پهنای قاب 157.8 میلیمتر
  • پهنای بازشو 71 میلیمتر
  • ضخامت دیواره 1.8 - 2 میلیمتر
  • پهنای تیغه پلی آمید 34 میلیمتر
  • ضخامت شیشه تا 46 میلیمتر
  • ارتفاع قابل رویت 138 میلیمتر
  • انواع بازشوهای درب قابل اجرا